Режиссер: Владислав Наставшев
Сценография: Валерия Барсукова
Иногда в мастерскую приходят задачи, которые с виду напоминают легкий этюд. Почти невесомый, скромный по масштабу — всего пять на пять метров. «Митина любовь» казалась именно таким случаем. Срочный заказ, втиснутый между большими монументальными проектами, почти передышка, почти отдых для уставших рук. Так мы думали, когда впервые увидели название. А потом нам прислали эскиз.
Старая тряпка как высшая проба мастерства
На эскизе был занавес. Не новый, не парадный, не сияющий свежестью красок. Напротив — занавес-ветеран, потрепанный временем, с историей, прочитанной в каждой складке, в каждом выцветшем пятне. Художник Валерия Барсукова искала не идеальную новизну, а подлинность старины. Ту самую фактуру, которую невозможно купить в магазине тканей, которую нельзя нарисовать за один день. Ее неофициальный, но самый точный бриф звучал так: «Сделайте вот эту, простите, старую тряпку».
Мы легкомысленно улыбнулись. Казалось, что всё просто. Ну старая, ну тряпка — растушуем краску, добавим потертостей, и дело в шляпе. Но первые же разговоры о крое, о лекальном верхе, о выборе материала и оттенках живописи заставили насторожиться. Чертеж, разложенный на столе, шептал: «Девчата, тут немножко посложнее, чем вы себе представляете». Этот занавес не собирался быть простым. И его главная уловка была еще впереди.
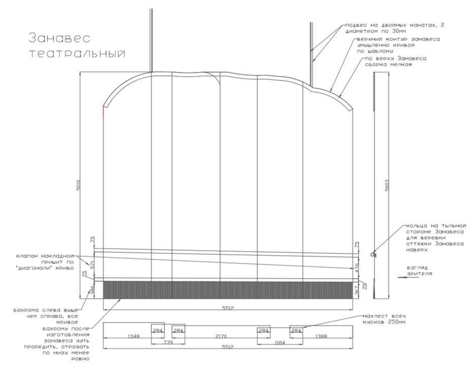
Пять фрагментов и бахрома, которой не существует
Благородный, поживший занавес раскрыл свои карты. Он состоял из пяти отдельных фрагментов, и каждый имел лекальный верхний край, повторяющий изгиб основной декорации. Ошибись на миллиметр — и вся композиция нахлестов рассыплется, потеряет дыхание, перестанет быть единым целым. Это была работа для ювелиров, а не для живописцев.
Начался поиск бахромы. Разумеется, в обычном мире бахромы шириной сорок сантиметров не существует. И даже если бы существовала, она была бы новой, блестящей, фабричной — а требовалась старая, почти драная, с благородно патертой временем. Такую не купишь. Такую можно только сделать.
Бахрому сшили сами. Вручную. Подбирали шнур, тонировали пайетки, смешивали составы, чтобы добиться того самого оттенка «старого золота» — не кричащего, не парадного. Это была чистая театральная алхимия: создать ветхость, которая выглядит дороже любого современного лоска. Ветхость, за которой угадываются десятилетия сценической жизни.
Параллельно шла роспись: следы где-то растушёванные, как от протечки, где-то с чёткими контурами. У художника на этот счет было очень четкое понимание, целая раскладка пятен. И работа была как настоящей живописью — постепенным переносом каждого «рисунка».
Подвиг и резинка на штанах
В финале был аккорд от художника: собрать занавес в мелкую сборочку наверху, «как резинка на спортивных штанах», — сказала Валерия. Мы посмотрели на уже собранный в благородную складку занавес, вдохнули поглубже… и переделали. Потому что когда художнику не всё равно, его неожиданные «хотелки» — это не каприз. Это и есть путь к настоящему сценическому волшебству.
Занавес, прошедший через огонь, воду и медные трубы — точнее, через кривой крой, ручную бахрому и ту самую резинку, — наконец был готов. Он обрел дыхание. Он учился жить самостоятельно, уже отдельно от мастерской. Последние живописные штрихи наносили прямо при монтаже, на готовом изделии, вживую соотнося ткань с пространством сцены.
Декоративный элемент, идущий по косой, чудом сошелся на всех пяти фрагментах, несмотря на разную высоту каждого. Когда начинаешь вникать в такой чертеж, понимаешь только одно: «Наконец-то попали». Это чувство невозможно спутать ни с чем.
А потом случилось прекрасное. После всей этой непростой работы, которая поначалу казалась легкой прогулкой, занавес… наконец стал похож на тот образ, что жил в голове художника. Тот самый случай, когда кажущаяся простота — всего лишь итог долгого и сложного пути.
Занавес уехал на монтаж. Подвижный, на кольцах, он должен был уезжать вверх, но как обычно во время репетиций реальность внесла свои коррективы, и был найден еще более красивый рисунок движения ткани, чем сначала запланированный. Театр, во главе с художником, мужественно занимался экспериментами. А мы поддерживали связь, было ужасно интересно как же все сложится в итоге… И получилось все равно по-другому. Лучше, чем было задумано.
Манифест простоты
Эта история стала для мастерской почти манифестом. Напоминанием, выбитым в рабочей памяти: ничего не бывает простым. За самой легкой, воздушной, почти невесомой материей всегда скрывается кропотливый труд. Внимательная работа мастеров, бессонные ночи технолога, руки, способные пришить сорок сантиметров несуществующей бахромы так, чтобы это выглядело естественно. И головы — способные понять, как соединить пять лекальных фрагментов в единое дышащее полотно.
«Митина любовь» вышла нежной. Но какой ценой далась эта нежность — знают только те, кто ее создавал. И, кажется, зрители, которые видят этот занавес на сцене. Потому что настоящее всегда чувствуется. Даже когда оно притворяется старой, потрепанной тряпкой.

Оставьте контакты — и мы превратим вашу идею в сценическую реальность
Каждый спектакль уникален — как и наш подход к работе. Расскажите о вашем видении, и мы найдём идеальное решение вместе.


























